• HOME
  • ABOUT
  • MEMBER
  • CONTACT
  • FACEBOOK
  • KAO

KAL

関東学院大学 建築・環境学部 粕谷研究室

  • HOME
  • ABOUT
  • MEMBER
  • CONTACT
  • FACEBOOK
  • KAO
1.jpg 2.jpg 3.jpg 4.jpg 5.jpg 6.jpg 7.jpg 8.jpg 9.jpg IMG_8941.jpeg IMG_8942.jpeg IMG_8943.jpeg IMG_8944.jpeg IMG_8945.jpeg

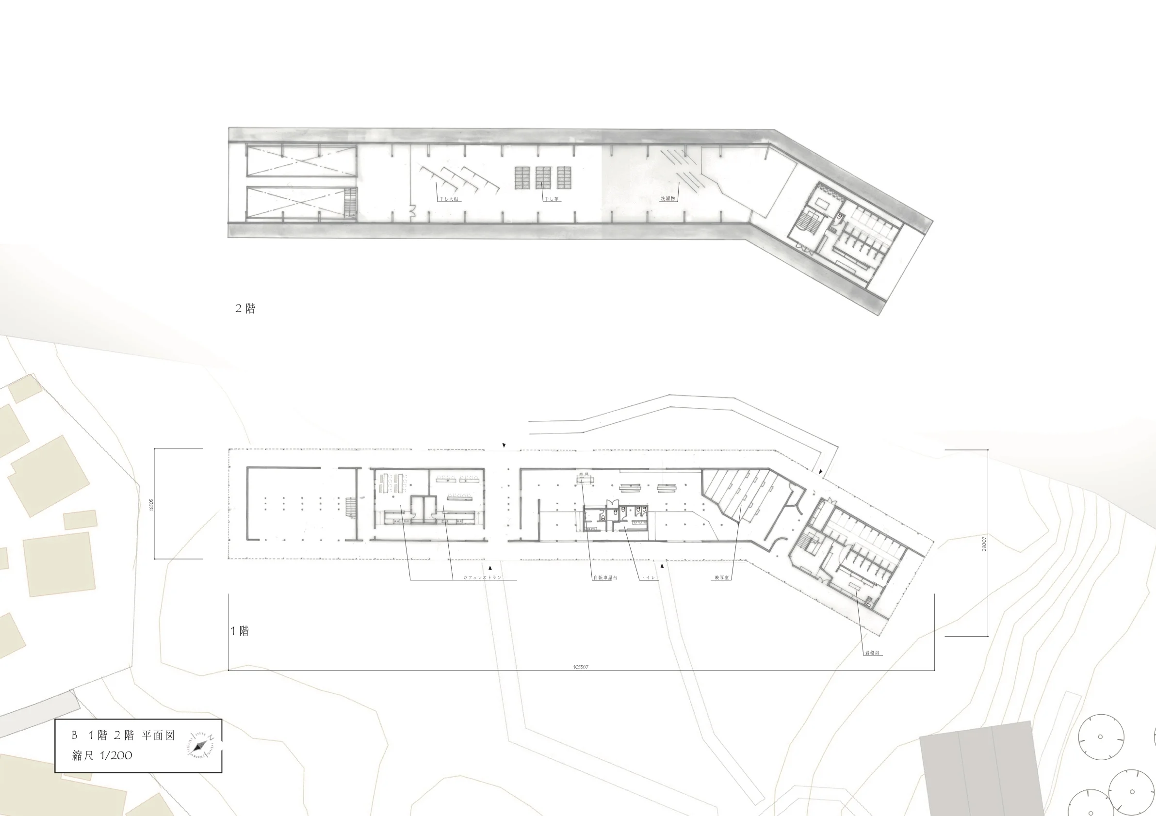
田中美穂『よりどころの大屋根』(2017年度Diploma Design Prize ノミネート)
大正時代の遊園地から戦時中は高射砲台の敷地、そして競輪場へと数奇な運命を辿った横浜市鶴見区の花月園跡地を敷地として、人々の心のよりどころ(サードプレイス)としての意味を持つ、ふたつの大きな住空間が提案されている。作者が取り組んだのは、年々増加する自殺者という社会問題に対し、建築が何をなし得るのか、という非常に重いテーマである。住民同士の自発的な交流を生むために、また、入れ替わりこの施設を利用する人々に対して、どのようなしつらえを用意するか。ゲストハウス、カフェレストラン、岩盤浴施設、屋台の広場、屋上の外部空間など、作者の誠実な試行錯誤が、独特の屈曲した形状を持つ二つの大屋根に結実している。


IMG_8929.jpeg IMG_8930.jpeg IMG_8931.jpeg IMG_8932.jpeg

土屋貴裕『浦賀船渠の開放計画 -浦賀船渠第一号ドックの再利用-』(2017年度Diploma Design Prize 銅賞)
横須賀市浦賀にある浦賀船渠跡地を、「海洋研究所」兼「造船図書博物館」として再利用する計画である。地中に彫り込まれた「虚」の空間であるドックに敬意を払い、保持しながら、新たな用途に供する「実」の空間を生み出すために、周囲の地面を盛って緩やかな丘を形作り、その中に建築空間を作り出している。ドックの外形を拡幅した馬蹄形の内部空間は、地上階が一体的な図書博物館として、上階が研究施設として利用される。着想が大胆であるだけでなく、浦賀の街の「これまで」と「これから」のあり方を見据えた射程の長い提案であり、周囲のランドスケープと一体となった建築が、迫力のある模型とドローイングで表現されている。


1.jpg 2.jpg 3.jpg 4.jpg 5.jpg 6.jpg 7.jpg 8.jpg IMG_8958.jpg 2.JPG 3.JPG 4.JPG 5.JPG 6.JPG 7.JPG 8.JPG 1.JPG

橋本まい子『光とともに故人と向き合う -都市部における新しい室内墓地の提案-』(2017年度足立賞受賞、2017年度Diploma Design Prize ノミネート)
日本の都市部は慢性的な土地不足に起因する墓地不足に加えて、地方から都市に出てきた人々が地元に戻らぬまま高齢化し、墓を持つことができないという問題を抱えている。こうした背景から高まる室内墓地の需要に対し、「人のいのちに寄り添う」ような、新たな室内墓地は未だ存在していない。作者はこうした問題意識から、自らがふとした瞬間に故人を思い出し、記憶が照らされる経験をもとに故人を一種の「光」として捉え、光を手がかりに数多くのスタディを行った。日常生活で魅力を感じた光を撮影し、それぞれの写真が備える特徴を言葉として書き出し、具体的な空間に変換していく。その粘り強い手続きが、作品に余すことなく表現されている。



圧縮ボード.jpg IMG_2930.jpg IMG_8967.jpeg IMG_8968.jpeg IMG_2940.jpg IMG_8970.jpeg IMG_8971.jpeg IMG_2939.jpg

長谷川友莉香『焼津のまちにいること -津波とまちの未来に向き合う-』(2017年度Diploma Design Prize ノミネート)
作者の故郷である静岡県焼津市は、日本でも有数の歴史を持つ港町であり、人々は海と共に生活し、商売し、歴史を創ってきた。しかし近年では、いずれ来るといわれる東海地震による津波を懸念してか、海沿いを中心に人口が減少している。この作品は巨大な防波堤による「強い」防御とは異なる観点で、これからの焼津がいかに海と共存していくのかを真摯に考えた提案である。海沿いの遊休地に防災を兼ねた雑木林と、津波の襲来を人々に知らせる「波除地蔵」の伝奇に由来した3つの塔が、海近くの場所には焼津の伝統とともに人々を惹きつける魅力を備えた商業施設が提案され、焼津駅と沿岸地域を結びつける、人々の新たな流れが作り出されている。


パース.jpg IMG_8979.jpeg IMG_8981.jpeg IMG_8982.jpeg IMG_8983.jpeg 1.jpg 2.jpg 3.jpg 4.jpg

村上千紗『廃墟になるための建築』(2017年度Diploma Design Prize 銀賞)
A1×4枚の水彩ドローイングを中心に表現された、今後の社会に対する壮大なマニフェストである。国や世界が「遺産」として遺す建物だけでなく、人々の日常生活の場であった住宅、かつての賑わいのなくなったショッピングセンター、その役割を終えた工場といった一見ありふれた建物こそが、人々の記憶と歴史の集積であり、重要なものなのだという考えをもとに、それらが一種の地層として、廃墟として積み重なっていく未来都市の姿が、驚嘆すべき力量のドローイングで表現されている。ピラネージによる「牢獄」のドローイングや、1960〜70年代のアーキグラムによる活動をも想起させる、建築的ビジョナリーとして高度の資質を備えた作品である。


IMG_8946.jpeg IMG_8947.jpeg IMG_8948.jpeg

天木卓実『新潟市中央区古町地区の空きビル、駐車場地の再利用計画』


IMG_8949.jpeg IMG_8950.jpeg IMG_8951.jpeg IMG_8953.jpeg IMG_8955.jpeg IMG_8956.jpeg IMG_8957.jpeg

石原稜平『コネクティブ・ハウス  新羽地区における新しいすまいかたの提案』


IMG_8933.jpeg IMG_8934.jpeg IMG_8935.jpeg IMG_8936.jpeg

大島逸人『路地のある高齢者住宅  曖昧さからうまれるコミュニティ』


IMG_8937.jpeg IMG_8938.jpeg

小島舞郁『団地マルシェ 団地×マルシェ×空地』


IMG_8939.jpeg IMG_8940.jpeg

篠宮ナル『日常に対する非日常』


IMG_8927.jpg

前田美波『未来へつなぐ神殿』


IMG_8972.jpeg IMG_8973.jpeg IMG_8974.jpeg IMG_8976.jpeg

安田莉花『縁 人と人をつなげる生涯学習センター』


copyright (C) 2024 Kasuya Lab. All rights reserved.
College of Architecture and Environmental Design, Kanto Gakuin University